OWCN-GT-DS滴水系统
OWCN-GT-DS SYSTEM
产品说明 PRODUCT DESCRIPTION
GT-滴水系列悬挂型长条金属吊顶属于开放式吊顶,特点是提供了单方向性视觉的掩饰,由于自然下垂形成的空间,因此拆卸方便,对其安装、维修限制较小。灯光、喷淋及空调可以随意安装在吊顶内部,无需对吊顶任何处理。
●Suspended linear strip metal ceiling of GT-DS baffle System is an opening type.
●It provides visual decoration of single direction.
●Quick installation & easy maintenance.
●Lighting, Sprayer and air-condition can be installed in the ceiling layouts.
OWCN-GT-DS滴水系统 HF-GT-DS SYSTEM

OWCN-GT-DS滴水系统选用附件表 HF-GT-DS BAFFLE SUSPENSION SYSTEM

安装结构示意图 INSTALLATION AND ASSEMBLY DETAIL

OWCN-GT-YT圆通系统
OWCN-GT-YT SYSTEM
产品说明 PRODUCT DESCRIPTION
GT-YT圆通系列悬挂型长条金属吊顶属于开放式吊顶,特点是提供了单方向性视觉的掩饰,由于自然下垂形成的空间,因此拆卸方便,对其安装、维修限制较小。灯光、喷淋及空调可以随意安装在吊顶内部,无需对吊顶任何处理。
●Suspended linear strip metal ceiling of HF-GT-YT baffle System is an opening type.
●It provides visual decoration of single direction.
●Quick installation & easy maintenance.
●Lighting, Sprayer and air-condition can be installed in the ceiling layouts.
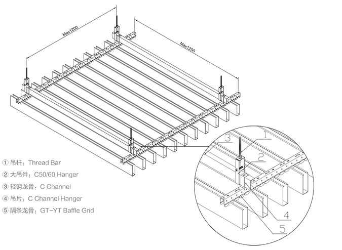
GT-YT圆通系列 GT-YT SYSTEM

GT-YT圆通系列板选用附件表 GT-YT SUSPENSION SYSTEM

安装结构示意图 INSTALLATION AND ASSEMBLY DETAIL

OWCN-GT-FT方通系统
OWCN-GT-FT SYSTEM
产品说明 PRODUCT DESCRIPTION
OWCN-GT-FT方通系统悬挂型长条金属吊顶属于开放式吊顶,特点是提供单方向性的视觉掩饰,由于自然下垂形成的空间,因此拆卸方便,对其安装、维修限制较小,灯光、喷淋及空调可以随意安装在吊顶内部,无需对吊顶任何处理。
●Suspended linear strip metal ceiling of HF-GT-FT baffle System is an opening type.
●It provides visual decoration of single direction.
●Quick installation & easy maintenance.
●Lighting, Sprayer and air-condition can be installed in the ceiling layouts.
GT-U系列折弯格条 GT-U BENDING SYSTEM

GT-圆通系列板选用附件表 GT-YT SUSPENSION SYSTEM

安装结构示意图 INSTALLATION AND ASSEMBLY DETAIL



备案号:
关注世界杯平台官方微信